Hightech Innovation Center München

Vielerlei Artikel der Firma Würth sind in unseren Gebäuden bereits zur Anwendung gekommen. Mit der Planung des Hightech Innovation Center durften nun wir für das Unternehmen tätig werden. Das Gebäude nimmt Laborräume, Werkstätten und Büros für die Produktentwicklung von innovativen und kundenspezifischen, elektronischen und elektromechanischen Bauteilen auf.
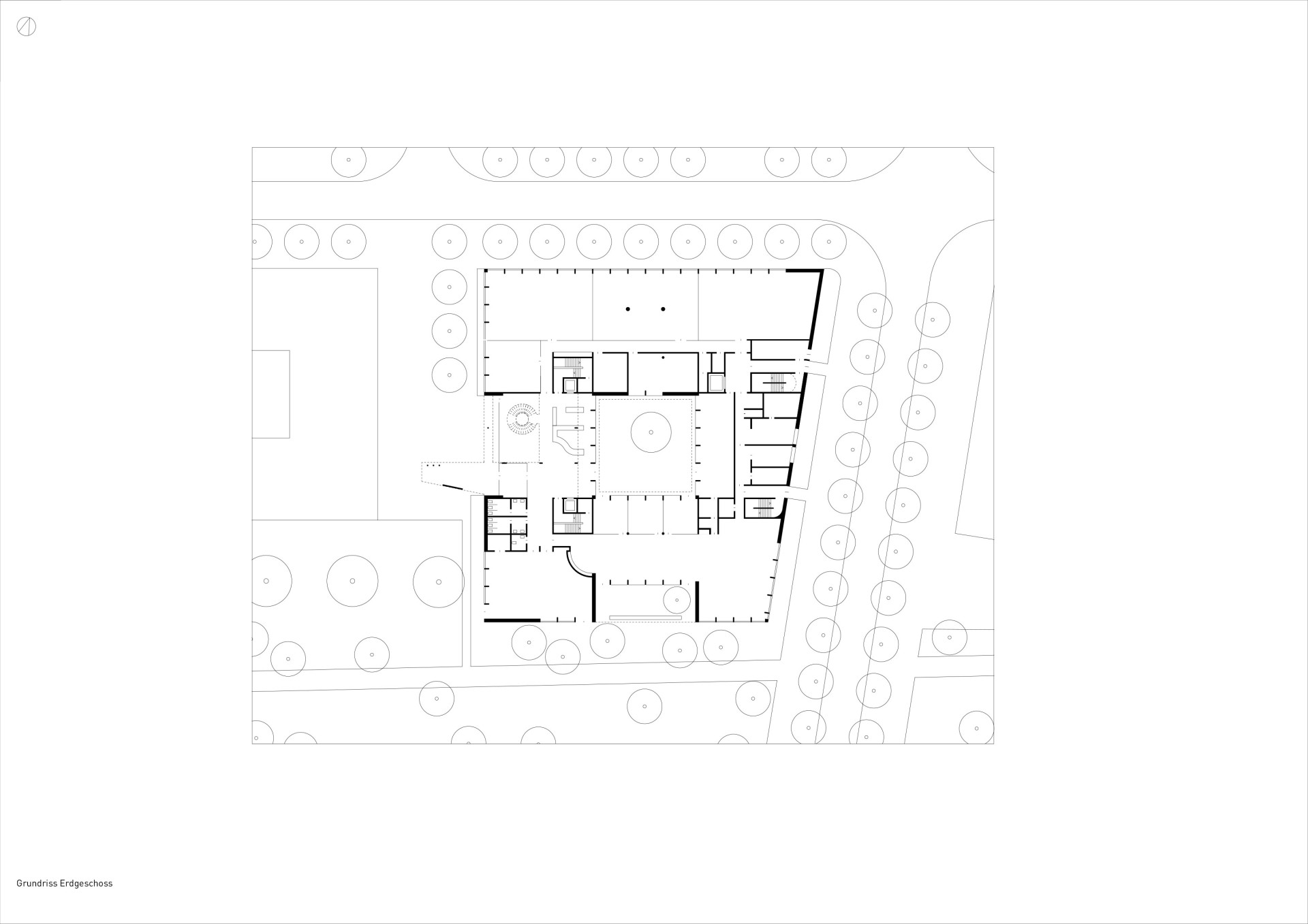
Um das geforderte Programm im extrem eng gesteckten und detailliert ausformulierten Rahmen des Bebauungsplans umsetzen zu können, haben wir einen kompakten dreigeschossigen Quader entworfen, aus dem einzelne Volumen ausgeschnitten sind. Diese Einschnitte liegen jeweils in der Mitte der Fassade, damit der Gesamtbaukörper seinen Charakter als klare stadträumliche Setzung behält und dem Ort allseitig ein Gesicht verleiht. Es entstehen dabei räumlich gefasste Terrassen, die dem Wunsch nach differenzierten Freiräumen für Mitarbeiter und Gäste des Hauses entsprechen.
Der Haupteingang liegt in einer solchen zurückgesetzten Situation auf der Westseite des Gebäudes. Das weit auskragende Vordach wird zu einem späteren Zeitpunkt als Auflager für eine Brücke dienen, welche die interne Verbindung hinüber zu einem zweiten Bauabschnitt ermöglicht. Zukünftig kann somit ein attraktiver, von beiden Gebäuden gefasster Vorplatz entstehen und als „Visitenkarte“ des Unternehmens zum Aufenthalt und zu Empfängen einladen.
Die ebenerdige Terrasse im Süden dient als Freisitz des Betriebsrestaurants und erhält durch den unmittelbar angrenzenden öffentlichen Grünraum hohe Aufenthaltsqualität. In der Mitte des Gebäudes liegt ein quadratischer Innenhof als begrünter Gartenraum, zu dem hin sich das Foyer und das Restaurant mit dem angrenzenden Sportraum großzügig öffnen.
Die Fassade aus hellen Betonfertigteilen ist vor die eigentliche Tragkonstruktion gestellt. Das Gerüst aus eng stehenden Stützen und auskragenden Brüstungselementen verleiht der Fassade Tiefe und tektonische Gestalt im Kontrast zu den glatten Wärmedämmverbundfassaden der Nachbargebäude. Der Weißbeton wurde gestockt, sodass der Zuschlag aus buntem Isar-Kies sichtbar wird. Durch den rechteckigen Stützenquerschnitt entstehen tiefe Laibungsflächen an den Fenstern. So wirkt die Fassade in der Bewegung entlang der angrenzenden Straßen geschlossen, während sie sich in der direkten Ansicht mit großzügig dimensionierten Einzelfenstern öffnet. Je nach Blickwinkel lässt die Tiefe der vorgestellten Betonfassade von innen eine bergende Raumwirkung entstehen, sodass trotz des hohen Glasanteils nirgends der Eindruck entsteht, ungeschützt in einer transparenten Glaskiste zu sitzen.
An den Vorplatz schließt das offene Foyer an, das hinauf bis zur obersten Etage reicht und die sichtbar belassenen Betonoberflächen der Gebäudekonstruktion zeigt. Die gewendelte Haupttreppe verbindet die Ebenen untereinander und bildet mit ihren geschlossen Treppenwangen einen eigenen Raum im weiten Foyer.
Die differenzierten Labor- und Versuchsräume des Testfelds für die elektronischen Bauteile nehmen etwa ein Viertel der Gesamtfläche ein und schließen im EG und im UG nördlich an das Foyer an. In der prominenten Süd-West-Ecke zwischen Foyer und Betriebsrestaurant liegt das Auditorium, das über eine mobile Trennwand in zwei Säle gleicher Größe aufgeteilt werden kann.
In den Obergeschossen schließen die unterschiedlichen Abteilungen von Entwicklung, Verwaltung und Vertrieb zu beiden Seiten des Foyers an. Sämtliche Flächen sind innerhalb des durch die Fassade vorgegebenen Gebäuderasters flexibel aufteilbar.
Wiederum im Südwesten liegt im 2. Obergeschoss der Konferenzbereich mit Besprechungsräumen unterschiedlicher Größe, die über die angrenzenden Grünflächen hinweg Aussicht bis zu den Alpen bieten.

Klima
Die allseitigen Fensterfassaden versorgen in Verbindung mit den Gebäudeeinschnitten alle Verwaltungsbereiche großzügig mit Tageslicht. Die weit auskragenden Simse dienen dabei als baulicher Sonnenschutz.
Die Grundtemperierung des Gebäudes erfolgt über eine Betonkernaktivierung in den Betondecken. Diese verblieben unverkleidet und erlauben somit die direkte Aktivierung der Gebäudemasse als thermischer Speicher, was die Anforderungen an die technischen Anlagen reduziert und zu allen Jahreszeiten für ein angenehmes Raumklima sorgt. Die Wärme- und Kälteerzeugung erfolgt regenerativ über Wärmetauscher im Grundwasser. Durch die natürliche Belüftung der Arbeitsräume über die Fenster konnte auf eine aufwendige Lüftungsanlage verzichtet werden.

Innenraum
Für die Innenräume wurden robuste und reparaturfähige, natürliche Baustoffe von hoher Beständigkeit ausgewählt. Die nötige Haustechnik ist mit präziser Leitungsführung offen an den Decken geführt. Die Bodenbeläge in den öffentlichen Bereichen bestehen aus strapazierfähigem Naturstein oder Massivparkett. In den Büroräumen ist Teppichboden verlegt. Alle akustisch erforderlichen Wandverkleidungen sowie die von uns gestalteten Einbaumöbel sind aus Eschenholz gefertigt. Die Verkleidung mit Massivholzleisten verbessert die Raumakustik, ist weniger empfindlich als furnierte Oberflächen und angenehm anzufassen.
Die Raumaufteilung der Verwaltungsebenen und die Möblierung des Hauses wurden entsprechend den Anforderungen der Abteilungen von einem Inneneinrichter umgesetzt. Dabei zeigt sich, wie flexibel die Gebäudestruktur auf unterschiedliche Bedürfnisse der Nutzer reagieren kann. Denn der wesentliche Aspekt in der Lebenszyklusbetrachtung ist für uns die Dauerhaftigkeit. Dies betrifft neben der notwendigen Flexibilität auch die Wahl der Materialien und eine auf lange Sicht positiv empfundene Architekturqualität.

Bauherr:
Würth Immobilien Ges. m. b. H.

Projektsteuerung:
Adolf Würth GmbH & Co. KG

Architekten:
LRO Lederer Ragnarsdóttir Oei, Stuttgart

Mitarbeiter:
David Fornol, Maximilian Löffler, Julius Bentele, Philipp Lülsdorf, Beatrice Pilgrim, Richard Scheele, Johannes Brambring, Levin Koch

Wettbewerb:
02/2019

Tragwerksplanung:
Mayer-Vorfelder-Dinkelacker GmbH & Co. KG, Sindelfingen

Prüfstatik:
ISP-Scholz Beratende Ingenieure, München

Haustechnik:
Zimmermann und Becker GmbH & Co. KG, Flein

Elektroplanung:
PBS Ingenieurgesellschaft mbH, Aalen

Bauphysik:
Horstmann + Berger Beratende Ingenieure, Altensteig

Freianlagenplanung:
LRO Lederer Ragnarsdóttir Oei, Stuttgart

Bauzeit:
2021-2023

Einweihung:
03.04.2023

BGF:
10.770 qm

Nutzfläche:
9.472 qm

Standort:
Clarita-Bernhard-Straße 9, 81249 München-Freiham

Veröffentlichungen
architekturblatt.de
15.5.2023

bba-online.de
20.6.2023

BAUKULTUR – Zeitschrift des DAI
4/5.2024

Pläne:
LRO GmbH & Co. KG

Fotos:
Roland Halbe, Stuttgart

Hightech Innovation Center München
Hightech Innovation Center München
Hightech Innovation Center München
Hightech Innovation Center München
Hightech Innovation Center München
Hightech Innovation Center München
Hightech Innovation Center München
Hightech Innovation Center München
Hightech Innovation Center München
Hightech Innovation Center München
Hightech Innovation Center München
Hightech Innovation Center München
Hightech Innovation Center München
Hightech Innovation Center München
Hightech Innovation Center München
Hightech Innovation Center München
Hightech Innovation Center München
Hightech Innovation Center München
Hightech Innovation Center München
Hightech Innovation Center München